Projects

Selected Engineering & Design Work

Back to Home
Cath Lab Electrical Design

Electrical System Design – Cath Lab

Karapitiya National Hospital

Complete electrical system design for a new Cardiac Catheterization Laboratory, including power distribution, lighting, and emergency systems.

Electrical Engineering AutoCAD Hospital Design
Morning Sun Villa

Morning Sun Villa – Residential Electrical Design

Villa Project

Electrical design coordinated with architectural layouts to ensure functionality, aesthetics, and long-term reliability.

Electrical Engineering BS Code Villa Project
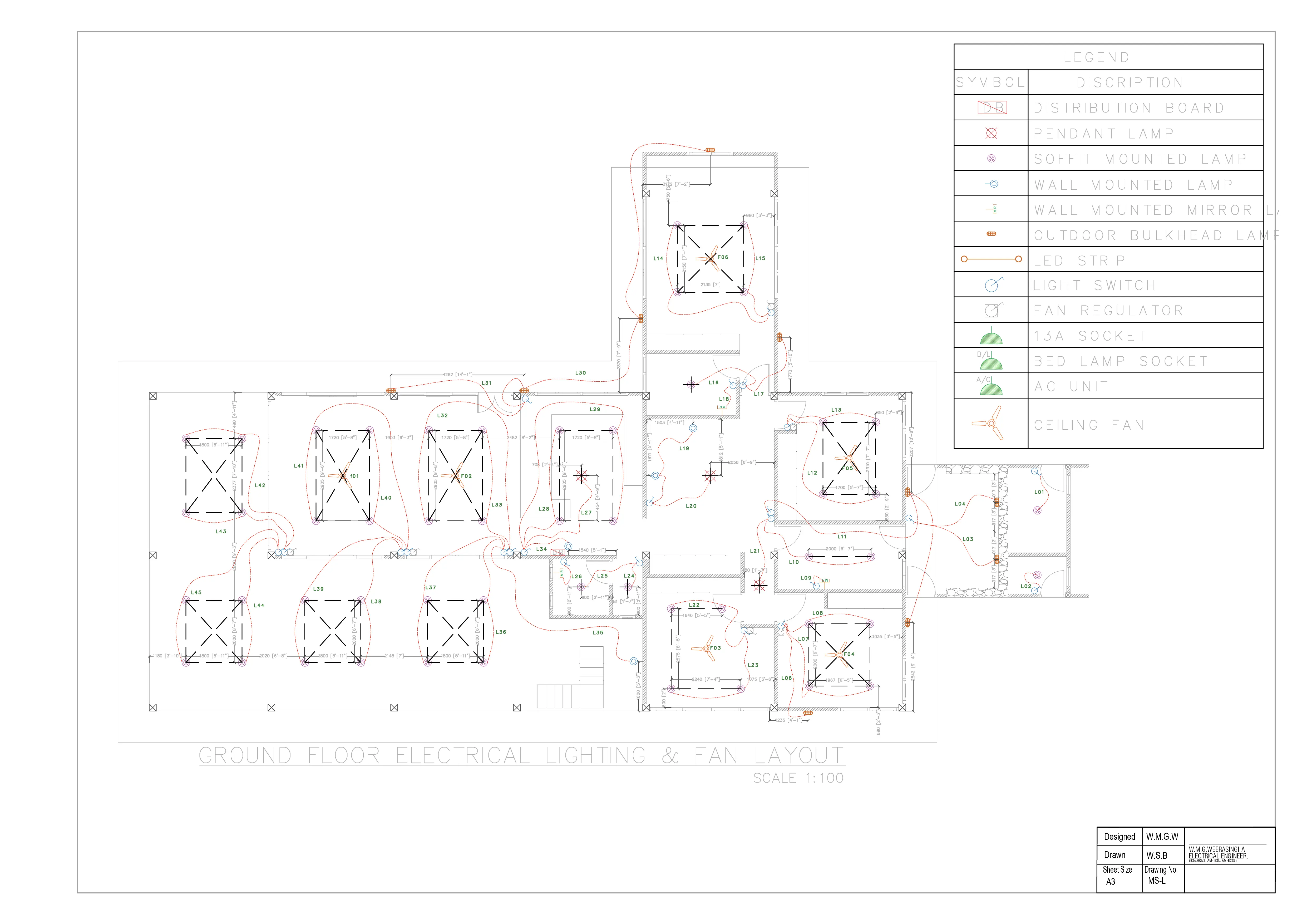
Mr Harindu Housing Project

Mr. Harindu Housing Project – Residential Electrical Design

Housing Project

Complete electrical system design and technical consultancy for a three-storey modern residential building.

Electrical Engineering BS Code Housing Project